Dostępne mieszkania:
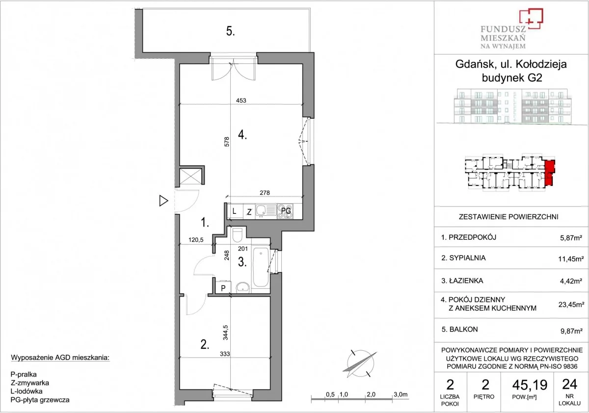
Lokal __ GDAKOLA24
Inwestycja __ Gdańsk ul. Mariana Kołodzieja

Balkon/Loggia
METRAŻ __ 45.19
POKOJE __ 2
PIĘTRO __ 2
CZYNSZ __ 2673zł
22 290 42 69





    OKRES NAJMU
    JUŻ OD 6-M-CY


    DŁUŻSZY NAJEM
    = NIŻSZY CZYNSZ


    KAUCJA JUŻ OD
    125% CZYNSZU


    ZWIERZĘTA MILE
    WIDZIANE


    HELP DESK 24H


    MEBLE I AGD


    Opis oferty _
    Kameralne osiedle w dzielnicy Ujeścisko-Łostowice, 3 minuty od drogi krajowej nr. 501. W dwóch bliźniaczych budynkach znajduje się 77 mieszkań (od 31 do 57 mkw.) z balkonami lub ogródkami. Z okien widać pokrytą zielenią skarpę lub przestronny i zadbany teren osiedla z placem zabaw. Do dyspozycji lokatorów jest 37 miejsc w garażu podziemnym i 46 naziemnych, można też wynająć komórkę lokatorską.
    Pod ręką są przystanki autobusowe, szkoły, przedszkola, żłobki, sklepy spożywcze i punkty usługowe.

    • Mieszkania są wykończone w standardzie „pod klucz”
    • Kuchnie i łazienki są umeblowane i wyposażone w sprzęt AGD (lodówka, pralka, zmywarka, płyta indukcyjna, piekarnik)
    • W mieszkaniach są szafy ubraniowe oraz meble ruchome
    • Do dyspozycji najemców jest serwis techniczny 24h
    • Okres najmu już od 6 m-cy
    • Czworonożni pupile mile widziani
    Przegląd prywatności

    Drogi Użytkowniku,
    Nasza witryna wykorzystuje pliki cookie, należące do nas lub do osób trzecich, do celów wydajności i spersonalizowanych reklam zgodnych z Twoimi preferencjami dotyczącymi przeglądania, które mogą być dla Ciebie interesujące. Szczegółowe informacje o tym, jak używamy plików cookie oraz jak zmienić preferencje dotyczące plików cookie, uzyskasz klikając w "Ustawienia plików cookie" poniżej. W każdym momencie możesz dokonać zmiany ustawień przeglądarki. Niektóre rodzaje przetwarzania danych nie wymagają zgody użytkownika, ale masz prawo sprzeciwić się takiemu przetwarzaniu.
    Klikając „Zaakceptuj wszystkie” lub zamykając okno przez kliknięcie w znaczek X, zgadzasz się na wykorzystywanie plików cookie i przechowywanie ich w swoim urządzeniu.

    Szczegółowe informacje znajdziesz w naszej Polityce prywatności.

    Funkcjonalne pliki cookie

    Pliki te zwiększają efektywność prowadzonych przez nas działań marketingowych, dostosowując je do Twoich potrzeb oraz preferencji.

    Reklamowe pliki cookie

    W celu promowania niektórych usług, artykułów lub wydarzeń, możemy wykorzystywać reklamy, które wyświetlają się w innych serwisach internetowych. Chcemy, aby wiadomości i reklama były jak najlepiej dostosowane do Twoich potrzeb.

    Pomiar wydajności

    Te pliki cookie pozwalają nam liczyć wizyty i źródła ruchu, dzięki czemu możemy mierzyć i poprawiać wydajność naszej strony.